В Орле продолжается реализация проектов комплексного развития территорий (КРТ)

Реализация социальных обязательств по обеспечению детей-сирот и детей, оставшихся без попечения родителей, жилыми помещениями,

Реализация социальных обязательств по обеспечению детей-сирот и детей, оставшихся без попечения родителей, жилыми помещениями, а также расселение горожан из аварийных жилых домов остается наиболее приоритетным направлением работы администрации города Орла.

Так, в 2022 году 75 детей-сирот получили квартиры, а реализация муниципальной программы по расселению из ветхого аварийного жилья преодолела экватор. Из почти 45 тыс. кв.м расселено 25 тыс. кв. м. Новое муниципальное жильё или выплату получили почти 2,2 тыс. человек, осталось обеспечить 940 человек. Ключевая задача на 2023 год – сделать всё возможное, чтобы завершить программу строго в срок или даже с опережением.

Несмотря на это, в Орле остается большое количество ветхих домов, которые признаны аварийными или находятся в неудовлетворительном состоянии. Решить эту проблему призвана реализация проектов комплексного развития территорий (КРТ). Сегодня она — самый рабочий механизм реновации городской среды, который активно поддерживается на государственном уровне.

Напомним, в 2022 году администрацией Орла заключен первый договор КРТ на участок, ограниченный Наугорским шоссе, ул. Куйбышева и ул. Цветаева. Вместо 1 350 кв.м аварийного жилья подрядчик возведёт новых 36 811 кв.м – это пять 10-этажных домов на 850 квартир.

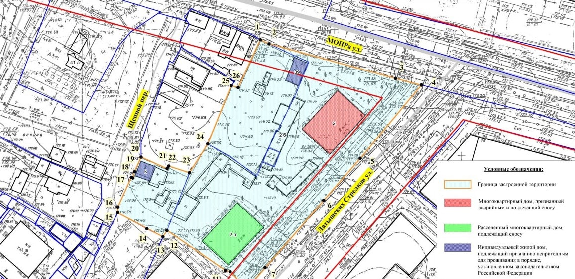
В мае 2023 года заключен еще один договор комплексного развития территории, ограниченной улицами Металлургов и Родзевича-Белевича. Объявлен конкурс на третью площадку КРТ, ограниченную ул. Латышских стрелков, ул. МОПРа и Щепным переулком.

Кроме этого, определены еще 5 потенциальных площадок, к реализации договоров КРТ на которых мы готовы приступить уже в этом году:
- территории микрорайона №13 в Северном районе города Орла;
- территория, ограниченная улицами Коммуны, Максима Горького, Ермолова;
- территория, ограниченная улицами Раздольная, Северная и границей городского округа «Город Орел» и улицами Гайдара, Льва Толстого;
- территория, ограниченная улицами Раздольная, Северная и границей городского округа «Город Орел»;
- территория, ограниченная улицами Плещеевская, Цветаева, Антонова.
По всем указанным площадкам уже ведется предварительный сбор данных.

«Важной особенностью КРТ является возможность изъятия для комплексной застройки кварталов домов блокированной застройки, объектов индивидуального жилищного строительства, садовых домов, имеющих высокий уровень износа, ненадлежащее техническое состояние или у которых отсутствует системы инженерно-технического обеспечения, гаражей и иных объектов, не соответствующих требованиям градостроительного регламента, что позволяет расселить людей, в том числе и из частного сектора, находящегося в аварийном состоянии», - поделилась начальник управления градостроительства администрации Орла Мария Родштейн.

Сегодня реализация механизма КРТ активно поддерживается на государственном уровне.

«Постановлением Правительства Российской Федерации предусмотрена возможность предоставления субсидий застройщикам, заключившим договоры КРТ не только на возмещение, но и на оплату расходов на выполнение обязательств по созданию, либо приобретению жилых помещений для предоставления гражданам, переселяемым из аварийного жилищного фонда.
Надеемся, что данные меры поддержки привлекут потенциальных застройщиков и вместе мы ускоренными темпами сможем реализовать жилищные программы» . - отметила Мария Родштейн.

Последние новости

Почему страховка — это не только формальность, но и реальная защита

Разбираемся, зачем нужен полис и как он может спасти от неожиданных проблем на дороге

Глазуновская ЦРБ задолжала 2 миллиона страховых взносов

В дело пришлось вмешаться прокуратуре Орловской области. Фото: гцрб.рф К настоящему моменту долг погашен.

Когда скидки превращаются в ловушку: как маркетологи учат нас тратить

Почему “-50% только сегодня” не всегда значит выгоду, как скидки играют на эмоциях и почему даже рациональные люди становятся жертвами маркетинговых трюков.

На этом сайте вы найдете актуальные вакансии в Мелеузе с предложениями работы от ведущих работодателей города

Комментарии (0)

Добавить комментарий

Ваш email не публикуется. Обязательные поля отмечены *